Wettbewerbe | 2024 | Fischingen, TG

W2403 Fischingen

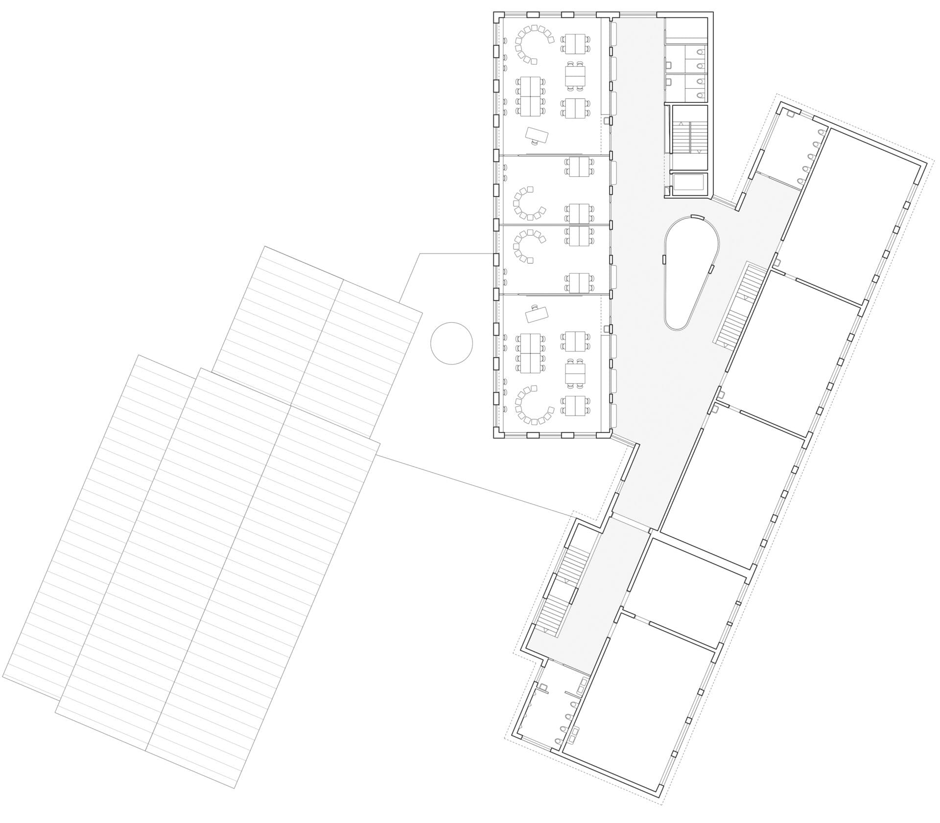
Erweiterung Schulanlage Fischingen, Wettbewerb nach Präqualifikation

Ort
Fischingen, TG
Realisierung
2024

Weitere Projekte