Wettbewerbe | 2024 | Hefenhofen, TG

W2303 Sonnenberg

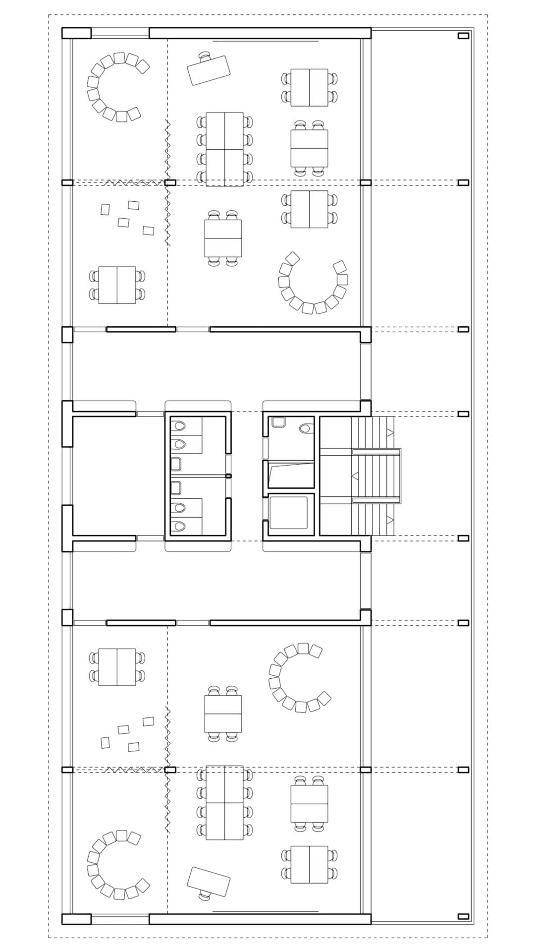
Erweiterung Schulanlage Sonnenberg, Wettbewerb im offenen Verfahren

Ort
Hefenhofen, TG
Realisierung
2024
Landschafstarchitektur
Schrämmli Landschaftsarchitektur

Weitere Projekte